SET
with 1 multi safety clamp
and guardrail post

Številka izdelka: V11191
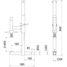
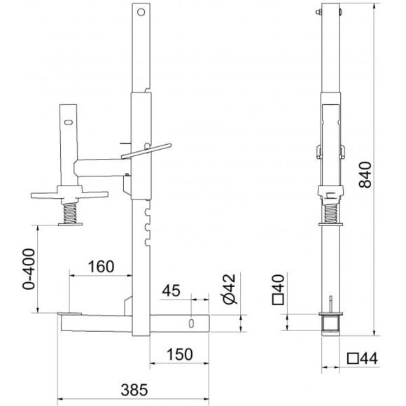
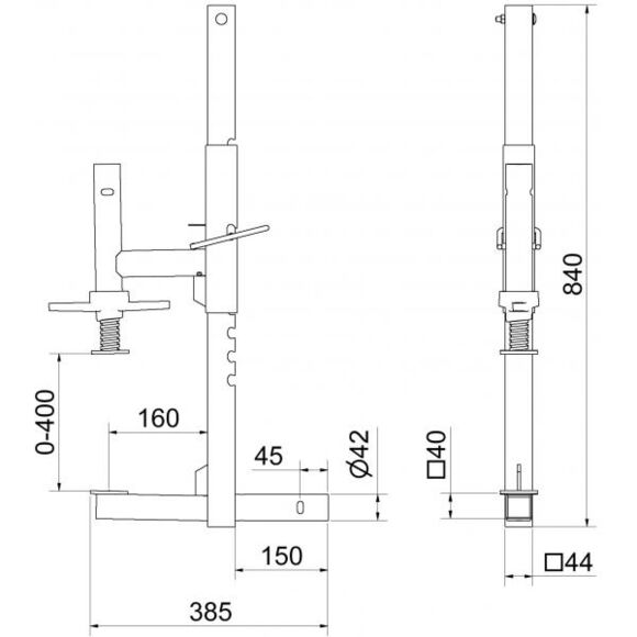
Multi-securing clamp with railing post consisting of:

1 x multi-securing clamp (part-no. 11191)
1 x multi-railing post (part-no. 11192)

Multi variable-safety clamp
as fall arrester when working at a height,
the clamp can be mounted vertically on ceilings or horizontally on railings,
mounting by thread and useful handle, rough adjustment by contour grips
of movable wing for quick installation, insertion of railing posts after placing
of clamps for a comfortable use, stable and safe steel construction
galvanized

Multi variable-safety clamp
for insert in variable - safety clamp (part-no. 11191) made of
round tube Ø 33.7 mm, height: 1.00 m, 3 hooks for planks
galvanized

Cena na kos:

Od 25,65 

Nazaj

Sorodni izdelki

Tu žal ni nobenega izdelka.